Buxton Road, North Chingford, London, E4 £325,000

1 Bedroom Apartment  Sold STC

Top Floor Converted Apartment

Potential To Extend Into The Loft (STPP)

Large Kitchen/Dining Area

Short Walk To Epping Forest & Open Spaces

Close To Chingford Station

Chain Free Sale

Council Tax Band B

Leasehold

88 Lease Years Remaining

Ground Rent £90 per annum

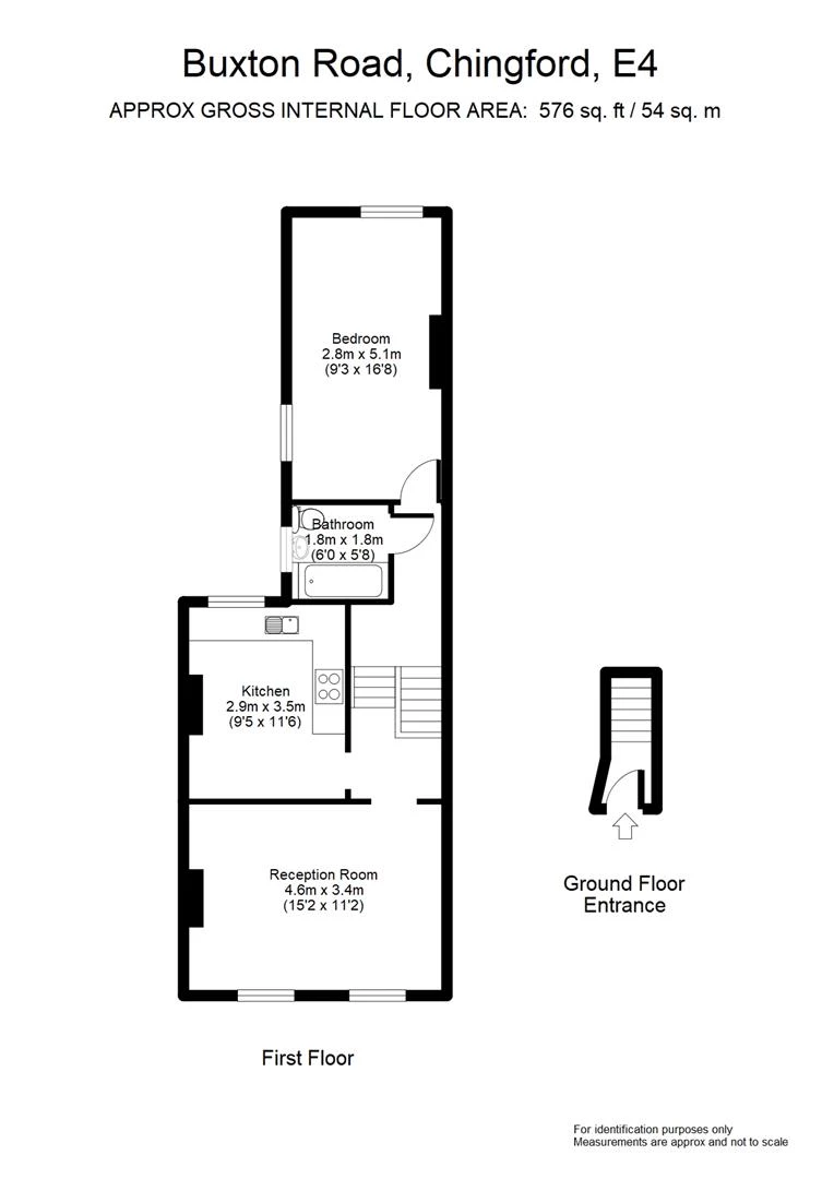
Situated in the heart of North Chingford is this spacious first floor floor maisonette. The property benefits from a large double bedroom, a spacious living room and good size kitchen, a family bathroom and the added benefit to be sold on a chain free basis.

Buxton Road is just around the corner from Station Road in North Chingford with all its bars, restaurants, coffee shops, and supermarkets such as Amazon Fresh, Co-op, and Tesco Express. Public transport includes local bus routes and Chingford Overground Station with direct access into Liverpool Street as well as Walthamstow Central where you can change over to the Victoria Line on the Underground. The vast green spaces of Epping Forest, Connaught Waters and Chingford Golf Course are nearby for when you fancy a lovely and peaceful walk.

Location
Buxton Road is enviably located on a tree-lined residential street within a two-minute walk of Chingford mainline station and close to the array of independent cafes, restaurants and shops.
It is also on excellent local bus routes, some direct to Stratford City and the new Olympic Park as well as Westfield shopping centre.

Property ownership information

Tenure: Leasehold 88 Years Remaining

Council tax band: B

Annual ground rent: £90.00

Ground rent review period: No review period

Annual service charge: No service charge

Service charge review period: No review period

Lease end date: 28/08/2111

Material Information

Type: Apartment
Age/Era: Ask Agent
Tenure: Leasehold - 88 lease years remaining
Ground Rent: £90 per annum
Service Charge: Ask Agent
Council Tax: Band B
EPC Rating: Ask Agent
Electricity Supply: Ask Agent (Find Supplier)
Gas Supply: Ask Agent (Find Supplier)
Water Supply: Ask Agent (Find Supplier)
Sewerage Supply: Ask Agent (Find Supplier)
Broadband Supply: Ask Agent (Fibre Checker)
Mobile Coverage: Depends on provider (Mobile Coverage)
Heating: Ask Agent
Parking: Ask Agent
EV Charging: Ask Agent
Accessibility: Ask Agent
Coastal Erosion Risk: Ask Agent
Flood Risks: Ask Agent (Flood Map for Planning Gov.uk)
Mining Risks: Ask Agent
Restrictions: Ask Agent
Obligations: Ask Agent
Rights and Easements: Ask Agent

Location

Floor Plan

15B Buxton Road, Chingford, E4.jpg

Property Images

IMG_1946.jpg
IMG_1929.jpg
IMG_2027.jpg
IMG_1993.jpg
IMG_1954.jpg
IMG_1933.jpg
IMG_1941.jpg
IMG_1950.jpg
IMG_1952.jpg
IMG_1963.jpg
IMG_1968.jphttps://login3.vebraalto.com/#g
IMG_1969.jpg
IMG_1972.jpg
IMG_1977.jpg
IMG_1983.jpg
IMG_1986.jpg
IMG_1926.jpg

Arrange a Viewing

Arrange a Viewing

This property is currently Sold STC. However, register your details below and we will contact you if it becomes available again.

Mortgage Calculator

Mortgage Details

Results

Stamp duty calculation

See full breakdown

Total SDLT due

Below is a breakdown of how the total amount of SDLT was calculated

Up to £0k (Percentage rate 0 %)

Above £0k and up to £0k (Percentage rate 0 %)

Above £0k and up to £0k (Percentage rate 0 %)

Above £0k and up to £0k (Percentage rate 0 %)

Above £0k and up to £0m (Percentage rate 0 %)

Above £om (Percentage rate 0 %)

Please note: This is for illustrative purposes only. The above calculator should not be relied upon when making financial decisions. Please seek advice from a specialist financial provider.

IMPORTANT NOTICE

Descriptions of the property are subjective and are used in good faith as an opinion and NOT as a statement of fact. Please make further specific enquires to ensure that our descriptions are likely to match any expectations you may have of the property. We have not tested any services, systems or appliances at this property. We strongly recommend that all the information we provide be verified by you on inspection, and by your Surveyor and Conveyancer.

Find your next property