Dale View Crescent, North Chingford, London, E4 Guide Price £720,000

3 Bedroom Semi Detached  Sold STC

Three Bedroomed Semi Detached House

27' Through Lounge

Large Rear Garden with A Versatile Out Building

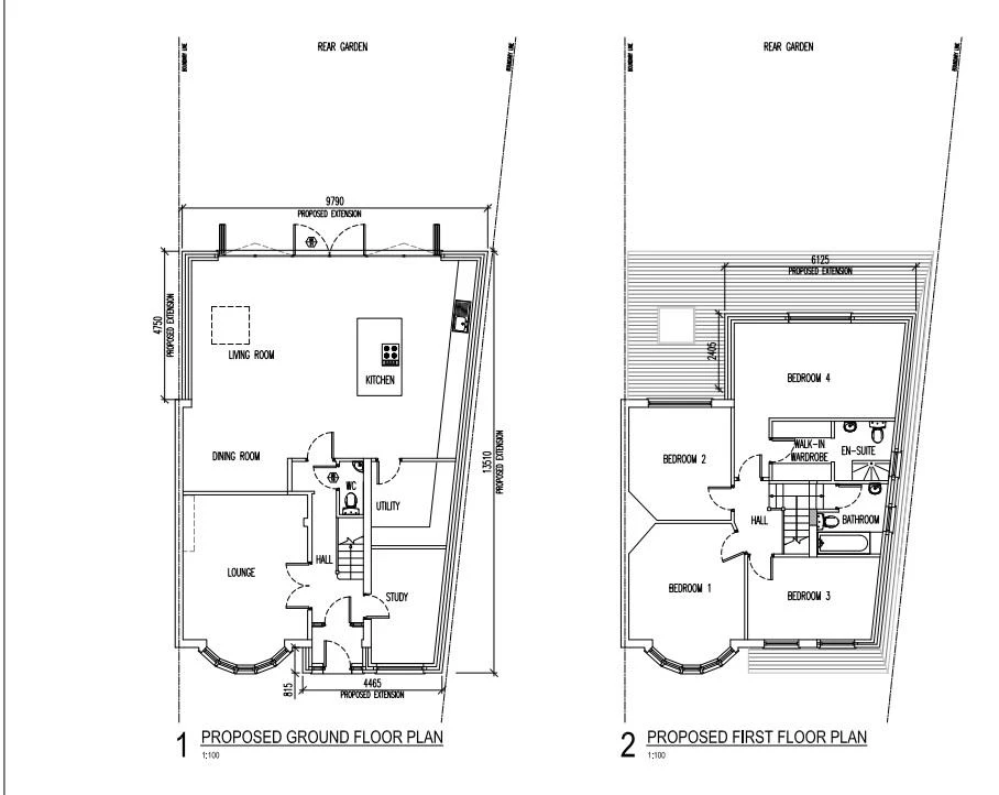
Planning Permission Granted For Double Story Wrap Around Ext

Off Street Parking for Two Cars

Garage To Side Of House

Walking Distance of Chingford & Highams Park Station

Close to Epping Forest

Tree Lined Quiet Residential Road

Excellent Primary and Secondary School Catchment

Council Tax Band E

Freehold

Coultons are delighted to offer this three bedroomed semi detached family home located on the ever popular and much sought after Dale View Crescent.

This property has immense potential as planning permission has been obtained by the present owner for a double story wrap around extension making this the ideal buy for a family looking to put their own stamp on it.
The ground floor accommodation comprises of a 27' through lounge and kitchen, both overlooking the lovely garden .

First floor accommodation comprises three bedrooms and a spacious family bathroom. The loft is large offering excellent scope for a loft conversion subject to the usual planning consents. The lovely rear garden is approximately 85ft in depth offering a large patio seating area and low maintenance artificially grassed lawn with a walkway to a large insulated outbuilding which is a great addition to the house.

The property is located within walking distance of Highams Park (TFL zone 4) and Chingford station (TFL zone 5) providing direct access into the City, London Liverpool Street is only 25 minutes away. It is also within walking distance of Station Road with its array of restaurants, bars, cafes and amenities.

This attractive 1930's style property is located in a sought after area with a strong family presence and community spirit with very accommodating neighbours. There are excellent primary and secondary schools nearby, both state and private, Chingford Foundation Sixth Form College which falls within the catchment area is currently rated outstanding by Ofsted.n.

Coultons are delighted to offer this three bedroomed semi detached family home located on the ever popular and much sought after Dale View Crescent.

This property has immense potential as planning permission has been obtained by the present owner for a double story wrap around extension making this the ideal buy for a family looking to put their own stamp on it.
The ground floor accommodation comprises of a 27' through lounge and kitchen, both overlooking the lovely garden .

First floor accommodation comprises three bedrooms and a spacious family bathroom. The loft is large offering excellent scope for a loft conversion subject to the usual planning consents. The lovely rear garden is approximately 85ft in depth offering a large patio seating area and low maintenance artificially grassed lawn with a walkway to a large insulated outbuilding which is a great addition to the house.

The property is located within walking distance of Highams Park (TFL zone 4) and Chingford station (TFL zone 5) providing direct access into the City, London Liverpool Street is only 25 minutes away. It is also within walking distance of Station Road with its array of restaurants, bars, cafes and amenities.

This attractive 1930's style property is located in a sought after area with a strong family presence and community spirit with very accommodating neighbours. There are excellent primary and secondary schools nearby, both state and private, Chingford Foundation Sixth Form College which falls within the catchment area is currently rated outstanding by Ofsted.

Strictly by appointment only. Please call vendors sole agent Coultons on 020 80900 860 to arrange a viewing appointment.

<b>Entrance</b> - Via UPVC front door.

<b>Hallway</b> - Wood flooring, doors leading to through lounge, kitchen and understairs storage, radiator, stairs leading to first floor.

<b>Through Lounge</b> - 8.25m x 3.96m - Electric fireplace, double glazed bay window to front aspect, double glazed sliding door to rear aspect, radiator, wood flooring.

<b>Kitchen</b> - 2.67m x 2.26m - Double glazed door to garden, spotlights, rolled edge work surface, stainless steel sink with mixer tap, gas cooker and integrated oven, space and plumbing for washing machine, dishwasher and fridge freezer.

<b>First Floor Landing</b> - Double glazed window to side aspect, doors leading to bathroom, bedroom one, two and three, carpet flooring.

<b>Bedroom One</b> - 4.52m x 3.76m - Carpet flooring, radiator, fitted wardrobes, double glazed window to front aspect.

<b>Bedroom Two</b> - 3.61m x 3.28m - carpet flooring, radiator, double glazed window to rear aspect, fitted wardrobes, spotlights.

<b>Bedroom Three</b> - 2.67m x 1.88m - Double glazed window to front aspect., radiator, carpet flooring.

<b>Bathroom</b> - 2.36m x 2.31m - Double glazed window to rear aspect, tiled floor and walls, panel enclosed bath, wash hand basin, low level flush WC, walk in shower, radiator.

<b>Garage</b> - 6.81m x 3.18m - Rear UPVC door, front up and over shutter door.

<b>Garden</b> - 26.01m x 10.13m - Part patio, part artificial grass, cold water tap, garden house at the rear.

<b>Garden House</b> - 6.02m x 4.8m - Double glazed bi folding doors, electricity and lighting throughout, fully insulated, laminate flooring, internal door leading to the next reception area.

Material Information

Type: Semi Detached
Age/Era: Ask Agent
Tenure: Freehold
Ground Rent: Ask Agent
Service Charge: Ask Agent
Council Tax: Band E
EPC Rating: Ask Agent
Electricity Supply: Ask Agent (Find Supplier)
Gas Supply: Ask Agent (Find Supplier)
Water Supply: Ask Agent (Find Supplier)
Sewerage Supply: Ask Agent (Find Supplier)
Broadband Supply: Ask Agent (Fibre Checker)
Mobile Coverage: Depends on provider (Mobile Coverage)
Heating: Ask Agent
Parking: Ask Agent
EV Charging: Ask Agent
Accessibility: Ask Agent
Coastal Erosion Risk: Ask Agent
Flood Risks: Ask Agent (Flood Map for Planning Gov.uk)
Mining Risks: Ask Agent
Restrictions: Ask Agent
Obligations: Ask Agent
Rights and Easements: Ask Agent

Location

Floor Plan

Floor Plan 1

Property Images

Photo 1
Photo 2
Photo 3
Photo 4
Photo 5
Photo 6
Photo 7
Photo 8
Photo 9
Photo 10
Photo 11
Photo 12
Photo 13
Photo 14
Photo 15
Photo 16
Photo 17
Photo 18
Photo 19
Photo 20
Photo 21
Photo 22

Arrange a Viewing

Arrange a Viewing

This property is currently Sold STC. However, register your details below and we will contact you if it becomes available again.

Mortgage Calculator

Mortgage Details

Results

Stamp duty calculation

See full breakdown

Total SDLT due

Below is a breakdown of how the total amount of SDLT was calculated

Up to £0k (Percentage rate 0 %)

Above £0k and up to £0k (Percentage rate 0 %)

Above £0k and up to £0k (Percentage rate 0 %)

Above £0k and up to £0k (Percentage rate 0 %)

Above £0k and up to £0m (Percentage rate 0 %)

Above £om (Percentage rate 0 %)

Please note: This is for illustrative purposes only. The above calculator should not be relied upon when making financial decisions. Please seek advice from a specialist financial provider.

IMPORTANT NOTICE

Descriptions of the property are subjective and are used in good faith as an opinion and NOT as a statement of fact. Please make further specific enquires to ensure that our descriptions are likely to match any expectations you may have of the property. We have not tested any services, systems or appliances at this property. We strongly recommend that all the information we provide be verified by you on inspection, and by your Surveyor and Conveyancer.

Find your next property