Hampton Road, Chingford, London, E4 £535,000

3 Bedroom Terraced  Sold STC

Three Bedroom House

Modern Fitted Kitchen

Living Room

Dining Room

Conservatory

Family Bathroom

Approx. 60ft Rear Garden

Garage

Off Street Parking

Quiet Location

Council Tax Band D

Freehold

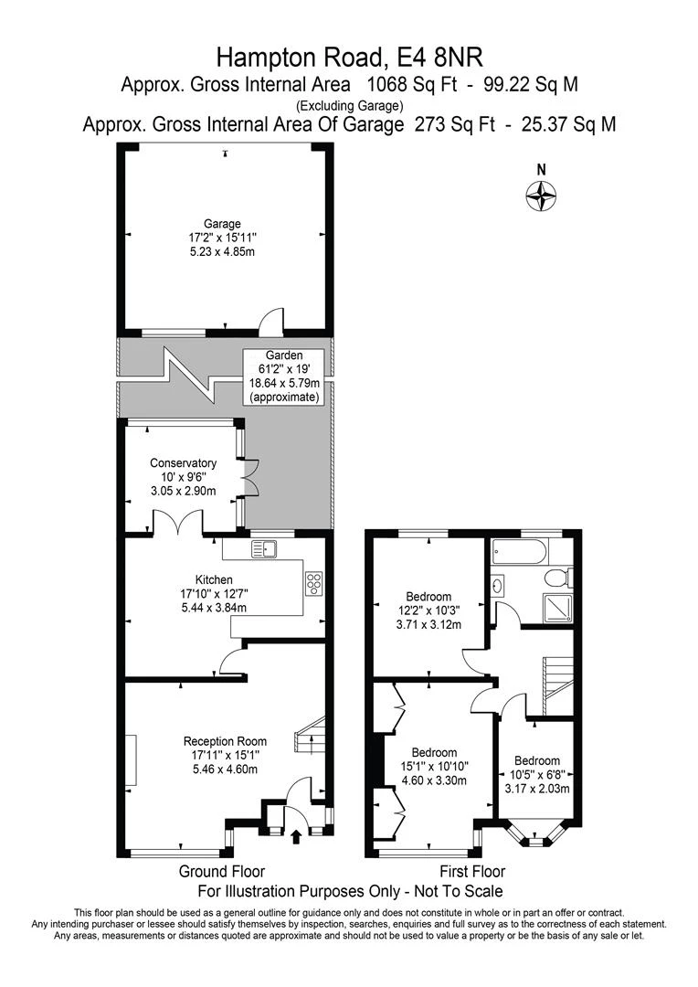
Situated on a quiet residential road is this well maintained mid terraced 1930's house. The ground floor comprises of a an open plan living room, a modern fitted kitchen with dining area with double doors opening onto a conservatory. Further double doors from the conservatory open onto the 60ft garden with a paved patio area, lawn area and a spacious garage to the end of the garden accessed via a service road. There is also off street parking to the front of the house The first floor comprises of three bedrooms, (two double and one single), along with a spacious family family bathroom. There is also scope to add a loft conversion subject to planning consent.

Hampton Road is situated close to local amenities and Cork Tree Retail Park with retailers such as Aldi supermarket, Currys PC World, Pets At Home, Sports Direct and more. Chingford Mount shopping area is also within easy reach with all its bars, restaurants & coffee shops. Public transport includes local buses plus several bus routes from the Mount, the Overground Station of Meridian Water, and for those who drive, the A406 North Circular Road is easily accessible.

There are several parks in Chingford to walk around along with the vast spaces of Epping Forest being nearby. Local schools include Chase Lane Primary & Lime Academy Larkswood.

In our opinion this property would make an excellent family home and viewing is highly recommended to fully appreciate this house.

Material Information

Type: Terraced
Age/Era: Ask Agent
Tenure: Freehold
Ground Rent: Ask Agent
Service Charge: Ask Agent
Council Tax: Band D
EPC Rating: Ask Agent
Electricity Supply: Ask Agent (Find Supplier)
Gas Supply: Ask Agent (Find Supplier)
Water Supply: Ask Agent (Find Supplier)
Sewerage Supply: Ask Agent (Find Supplier)
Broadband Supply: Ask Agent (Fibre Checker)
Mobile Coverage: Depends on provider (Mobile Coverage)
Heating: Ask Agent
Parking: Ask Agent
EV Charging: Ask Agent
Accessibility: Ask Agent
Coastal Erosion Risk: Ask Agent
Flood Risks: Ask Agent (Flood Map for Planning Gov.uk)
Mining Risks: Ask Agent
Restrictions: Ask Agent
Obligations: Ask Agent
Rights and Easements: Ask Agent

Location

Floor Plan

Floor Plan.jpg

Property Images

IMG_5798.JPG
DSCF6238_HDR.JPG
DSCF6246_HDR.JPG
DSCF6241_HDR.JPG
DSCF6253_HDR.JPG
DSCF6233_HDR.JPG
DSCF6250_HDR.JPG
DSCF6220_HDR.JPG
DSCF6224_HDR.JPG
DSCF6230_HDR.JPG
IMG_5792.JPG
IMG_5793.JPG
IMG_5794.JPG
DSCF6284_HDR.JPG
DSCF6281_HDR.JPG
DSCF6271_HDR.JPG
DSCF6275_HDR.JPG
DSCF6287_HDR.JPG
DSCF6290_HDR.JPG
DSCF6265_HDR.JPG
DSCF6269.JPG
DSCF6260.JPG
DSCF6264.JPG
IMG_5795.JPG

Arrange a Viewing

Arrange a Viewing

This property is currently Sold STC. However, register your details below and we will contact you if it becomes available again.

Mortgage Calculator

Mortgage Details

Results

Stamp duty calculation

See full breakdown

Total SDLT due

Below is a breakdown of how the total amount of SDLT was calculated

Up to £0k (Percentage rate 0 %)

Above £0k and up to £0k (Percentage rate 0 %)

Above £0k and up to £0k (Percentage rate 0 %)

Above £0k and up to £0k (Percentage rate 0 %)

Above £0k and up to £0m (Percentage rate 0 %)

Above £om (Percentage rate 0 %)

Please note: This is for illustrative purposes only. The above calculator should not be relied upon when making financial decisions. Please seek advice from a specialist financial provider.

IMPORTANT NOTICE

Descriptions of the property are subjective and are used in good faith as an opinion and NOT as a statement of fact. Please make further specific enquires to ensure that our descriptions are likely to match any expectations you may have of the property. We have not tested any services, systems or appliances at this property. We strongly recommend that all the information we provide be verified by you on inspection, and by your Surveyor and Conveyancer.

Find your next property