Hickman Avenue, Highams Park, London, E4 Offers in excess of £475,000

2 Bedroom Maisonette  For Sale

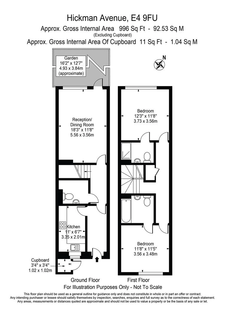
Two Double Bedroom Maisonette

Spacious Living Room

Contemporary Fitted Kitchen

Two En-Suite Bathrooms

Ground Floor Guest WC

Double Glazing

Gas Central Heating

Own Private Rear Garden

Approx. 242 Year Lease

Chain Free

Council Tax Band D

Leasehold

Ground Rent £434 per annum

Service Charge £743 per annum

Situated in the highly sought after area of Highams Park is this spacious self contained maisonette set over the ground and first floor. The property benefits from two double bedrooms each featuring their own private en-suite, a contemporary fitted kitchen, a spacious family/living room, a ground floor guest WC, double glazing, gas central heating, own front door and own private paved rear garden.

We have been advised that the remaining lease has approximately 242 years remaining, with an annual ground rent of £434 and service charge of £743 per annum.

Hickman Avenue is conveniently located in the heart of trendy and vibrant Highams Park with all its bars restaurants and coffee shops along with Highams Park Overground Station (Weaver Line - Zone 4) with direct access to Liverpool Street and Walthamstow Central where you can change over to the Victoria Line on the Underground. The property nestles perfectly between city and country life. Nature lovers can enjoy tranquil walks or cycle trails to explore the surrounding green spaces and wildlife of ancient Epping Forest.

In our opinion this property would make an excellent home and viewing is highly recommended.

Material Information

Type: Maisonette
Age/Era: Ask Agent
Tenure: Leasehold
Ground Rent: £434 per annum
Service Charge: £743 per annum
Council Tax: Band D
EPC Rating: Ask Agent
Electricity Supply: Ask Agent (Find Supplier)
Gas Supply: Ask Agent (Find Supplier)
Water Supply: Ask Agent (Find Supplier)
Sewerage Supply: Ask Agent (Find Supplier)
Broadband Supply: Ask Agent (Fibre Checker)
Mobile Coverage: Depends on provider (Mobile Coverage)
Heating: Ask Agent
Parking: Ask Agent
EV Charging: Ask Agent
Accessibility: Ask Agent
Coastal Erosion Risk: Ask Agent
Flood Risks: Ask Agent (Flood Map for Planning Gov.uk)
Mining Risks: Ask Agent
Restrictions: Ask Agent
Obligations: Ask Agent
Rights and Easements: Ask Agent

Location

Floor Plan

Floor Plan.jpg

Property Images

DSC03500.jpg
DSC03470.jpg
DSC03481.jpg
DSC03482.jpg
DSC03469.jpg
DSC03468.jpg
DSC03474.jpg
DSC03476.jpg
DSC03477.jpg
DSC03485.jpg
DSC03486.jpg
DSC03489.jpg
DSC03496.jpg
DSC03498.jpg
DSC03499.jpg
DSC03493.jpg
DSC03492.jpg
DSC03504.jpg

Arrange a Viewing

Arrange a Viewing

Mortgage Calculator

Mortgage Details

Results

Stamp duty calculation

See full breakdown

Total SDLT due

Below is a breakdown of how the total amount of SDLT was calculated

Up to £0k (Percentage rate 0 %)

Above £0k and up to £0k (Percentage rate 0 %)

Above £0k and up to £0k (Percentage rate 0 %)

Above £0k and up to £0k (Percentage rate 0 %)

Above £0k and up to £0m (Percentage rate 0 %)

Above £om (Percentage rate 0 %)

Please note: This is for illustrative purposes only. The above calculator should not be relied upon when making financial decisions. Please seek advice from a specialist financial provider.

IMPORTANT NOTICE

Descriptions of the property are subjective and are used in good faith as an opinion and NOT as a statement of fact. Please make further specific enquires to ensure that our descriptions are likely to match any expectations you may have of the property. We have not tested any services, systems or appliances at this property. We strongly recommend that all the information we provide be verified by you on inspection, and by your Surveyor and Conveyancer.

Find your next property