Hoppett Road, Chingford, London, E4 £2,500 pcm   Tenancy Info

4 Bedroom Semi Detached  Let Agreed

Four Bedroom House

Spacious Living Room

Modern Fitted Kitchen

Family Bathroom

En-Suite Shower Room

Double Glazing

Gas Central Heating

Approx. 65ft Rear Garden

Off Street Parking

Excellent Location

Council Tax Band D

Security Deposit £2,884

Available

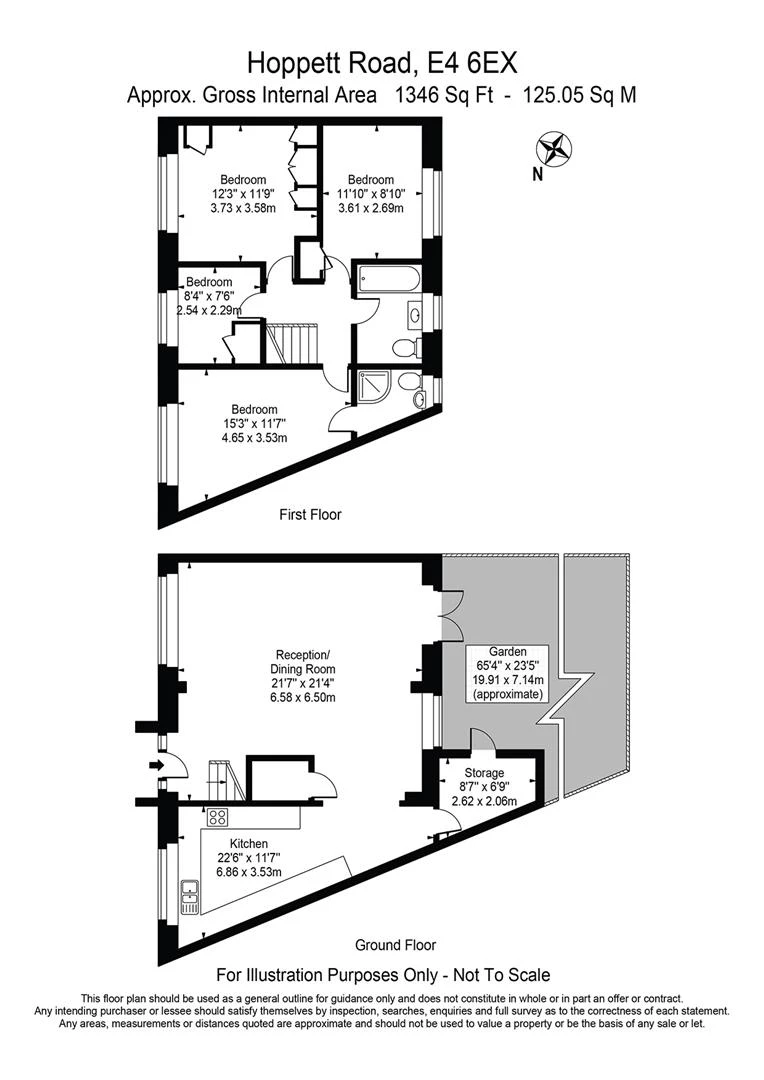
Situated on a quiet residential road is the very well maintained four bedroom semi detached house.
The ground floor comprises of a spacious open plan living room upon entering the property, a modern fitted kitchen, and a storage room. The first floor has four bedrooms, one with an en-suite shower room plus a modern fitted family bathroom.

Externally you have a 65ft rear garden and off street parking to the front.

Hoppett Road is situated within easy reach of local shopping area of Chingford Hatch and Station Road in North Chingford with all its bars, restaurants, coffee shops, local bus routes and Chingford Overground Station with direct access into Liverpool Street as well as Walthamstow Central where you can change over to the Victoria Line on the Underground. The vast green spaces of Epping Forest, Connaught Waters and Chingford Golf Course are just up the road for when you fancy a lovely and peaceful walk.

There are also plenty of local schools withing walking distance, both primary and secondary.

In our opinion this property would make an excellent family home and must be viewed to be fully appreciated.

Material Information

Type: Semi Detached
Age/Era: Ask Agent
Council Tax: Band D
EPC Rating: Ask Agent
Electricity Supply: Ask Agent (Find Supplier)
Gas Supply: Ask Agent (Find Supplier)
Water Supply: Ask Agent (Find Supplier)
Sewerage Supply: Ask Agent (Find Supplier)
Broadband Supply: Ask Agent (Fibre Checker)
Mobile Coverage: Depends on provider (Mobile Coverage)
Heating: Ask Agent
Parking: Ask Agent
EV Charging: Ask Agent
Accessibility: Ask Agent
Coastal Erosion Risk: Ask Agent
Flood Risks: Ask Agent (Flood Map for Planning Gov.uk)
Mining Risks: Ask Agent
Restrictions: Ask Agent
Obligations: Ask Agent
Rights and Easements: Ask Agent

Location

Floor Plan

Floor Plan 1

Property Images

Photo 1
Photo 2
Photo 3
Photo 4
Photo 5
Photo 6
Photo 7
Photo 8
Photo 9
Photo 10
Photo 11
Photo 12
Photo 13
Photo 14
Photo 15
Photo 16
Photo 17
Photo 18

Arrange a Viewing

Arrange a Viewing

This property is currently Let Agreed. However, register your details below and we will contact you if it becomes available again.

IMPORTANT NOTICE

Descriptions of the property are subjective and are used in good faith as an opinion and NOT as a statement of fact. Please make further specific enquires to ensure that our descriptions are likely to match any expectations you may have of the property. We have not tested any services, systems or appliances at this property. We strongly recommend that all the information we provide be verified by you on inspection, and by your Surveyor and Conveyancer.

Find your next property