Monkswood Avenue, Waltham Abbey, Waltham Abbey, EN9 £575,000

3 Bedroom Semi Detached  Sold STC

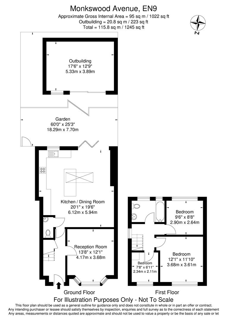
Three Bedroom Semi-Detached House

Open Plan Kitchen/Diner/Family Room

Separate Front Living Room

Modern Fitted Kitchen

Modern Fitted Family Bathroom

Ground Floor Guest WC

Double Glazing & Gas Central Heating

Approx. 60ft Rear Garden

Outbuilding

Off Street Parking

Council Tax Band E

Freehold

Presenting this beautifully appointed and exceptionally well-maintained three-bedroom semi-detached home, ideally situated on the highly sought-after Monkswood Avenue.
The ground floor features a welcoming front reception room, leading through to an impressive open-plan kitchen, dining, and living space. The contemporary kitchen is fitted with granite worktops, a generous central island, and modern units, enhanced by a striking pyramid-style lantern window that floods the room with natural light. Bi-fold doors open onto a low-maintenance rear garden measuring approximately 60ft, offering a paved patio, lawned area, and a versatile outbuilding which has power and running water, perfect for use as a home office, gym, or playroom. Side access leads to the front of the property, where off-street parking is available for two vehicles.
The first floor comprises three bedrooms (two doubles and one single) along with a stylish family bathroom. The property also offers excellent potential for a loft conversion (subject to planning permission), providing the opportunity to create additional living space if required.
Further benefits include double glazing, gas central heating, partial underfloor heating to the ground floor and a convenient ground-floor guest WC.
Monkswood Avenue is ideally positioned for well-regarded local schools, everyday amenities, and excellent transport links. The Town Centre is within easy reach, offering a variety of shops, cafés, and services, while the M25 and A10 provide straightforward commuter access. Nearby green spaces and countryside walks further enhance the appeal of this family-friendly location.
In our opinion, this property represents an outstanding family home, and early viewing is strongly recommended.

Material Information

Type: Semi Detached
Age/Era: Ask Agent
Tenure: Freehold
Ground Rent: Ask Agent
Service Charge: Ask Agent
Council Tax: Band E
EPC Rating: Ask Agent
Electricity Supply: Ask Agent (Find Supplier)
Gas Supply: Ask Agent (Find Supplier)
Water Supply: Ask Agent (Find Supplier)
Sewerage Supply: Ask Agent (Find Supplier)
Broadband Supply: Ask Agent (Fibre Checker)
Mobile Coverage: Depends on provider (Mobile Coverage)
Heating: Ask Agent
Parking: Ask Agent
EV Charging: Ask Agent
Accessibility: Ask Agent
Coastal Erosion Risk: Ask Agent
Flood Risks: Ask Agent (Flood Map for Planning Gov.uk)
Mining Risks: Ask Agent
Restrictions: Ask Agent
Obligations: Ask Agent
Rights and Easements: Ask Agent

Location

Floor Plan

Floor plan.jpg

Property Images

DSC00694.jpg
DSC00579.jpg
DSC00584.jpg
DSC00609.jpg
DSC00574.jpg
DSC00594.jpg
DSC00554.jpg
DSC00559.jpg
DSC00619.jpg
DSC00614.jpg
DSC00624.jpg
DSC00569.jpg
DSC00634.jpg
DSC00649.jpg
DSC00639.jpg
DSC00644.jpg
DSC00659.jpg
DSC00669.jpg
DSC00679.jpg
DSC00654.jpg
DSC00629.jpg
DSC00699.jpg

Arrange a Viewing

Arrange a Viewing

This property is currently Sold STC. However, register your details below and we will contact you if it becomes available again.

Mortgage Calculator

Mortgage Details

Results

Stamp duty calculation

See full breakdown

Total SDLT due

Below is a breakdown of how the total amount of SDLT was calculated

Up to £0k (Percentage rate 0 %)

Above £0k and up to £0k (Percentage rate 0 %)

Above £0k and up to £0k (Percentage rate 0 %)

Above £0k and up to £0k (Percentage rate 0 %)

Above £0k and up to £0m (Percentage rate 0 %)

Above £om (Percentage rate 0 %)

Please note: This is for illustrative purposes only. The above calculator should not be relied upon when making financial decisions. Please seek advice from a specialist financial provider.

IMPORTANT NOTICE

Descriptions of the property are subjective and are used in good faith as an opinion and NOT as a statement of fact. Please make further specific enquires to ensure that our descriptions are likely to match any expectations you may have of the property. We have not tested any services, systems or appliances at this property. We strongly recommend that all the information we provide be verified by you on inspection, and by your Surveyor and Conveyancer.

Find your next property