Stapleford Close, Chingford, London, E4 £400,000

2 Bedroom Terraced  Under Offer

Two Double Bedroom House

Spacious Living Room

Contemporary Fitted Kitchen

Modern Fitted Bathroom

Double Glazing

Gas Central Heating

Insulated Outbuilding With Hard Wired internet

Private Rear Garden

Off Street Parking

Quite Location

Council Tax Band C

Freehold

Offering for sale the very well maintained mid terraced house situated on a quiet residential close. The property benefits from two double bedrooms, a good sized living room, a contemporary fitted kitchen, a modern fitted bathroom, double glazing, gas central heating a private rear garden with an insulated outhouse with power and lighting, and off street parking.

Stapleford Close is within easy reach of the shopping facilities of both Chingford Mount and Highams Park with a vast array of bars, restaurants, coffee shops. Public transport includes several local bus routes as well as the Highams Park Overground Station with direct access into Liverpool Street. You can also inter change onto the underground at Walthamstow Central, Victoria Line Zone, and for those who drive the A406 North Circular Road is easily accessible.

There are several parks in Chingford to walk around along with the vast spaces of Epping Forest being nearby. Local schools include Chase Lane Primary, Parkside Primary and Larkswood Primary Academy.

The property has been well maintained by the current vendor and in our opinion would make an excellent family home for a first time buyer or someone downsizing. Viewing is highly recommended.

Material Information

Type: Terraced
Age/Era: Ask Agent
Tenure: Freehold
Ground Rent: Ask Agent
Service Charge: Ask Agent
Council Tax: Band C
EPC Rating: Ask Agent
Electricity Supply: Ask Agent (Find Supplier)
Gas Supply: Ask Agent (Find Supplier)
Water Supply: Ask Agent (Find Supplier)
Sewerage Supply: Ask Agent (Find Supplier)
Broadband Supply: Ask Agent (Fibre Checker)
Mobile Coverage: Depends on provider (Mobile Coverage)
Heating: Ask Agent
Parking: Ask Agent
EV Charging: Ask Agent
Accessibility: Ask Agent
Coastal Erosion Risk: Ask Agent
Flood Risks: Ask Agent (Flood Map for Planning Gov.uk)
Mining Risks: Ask Agent
Restrictions: Ask Agent
Obligations: Ask Agent
Rights and Easements: Ask Agent

Location

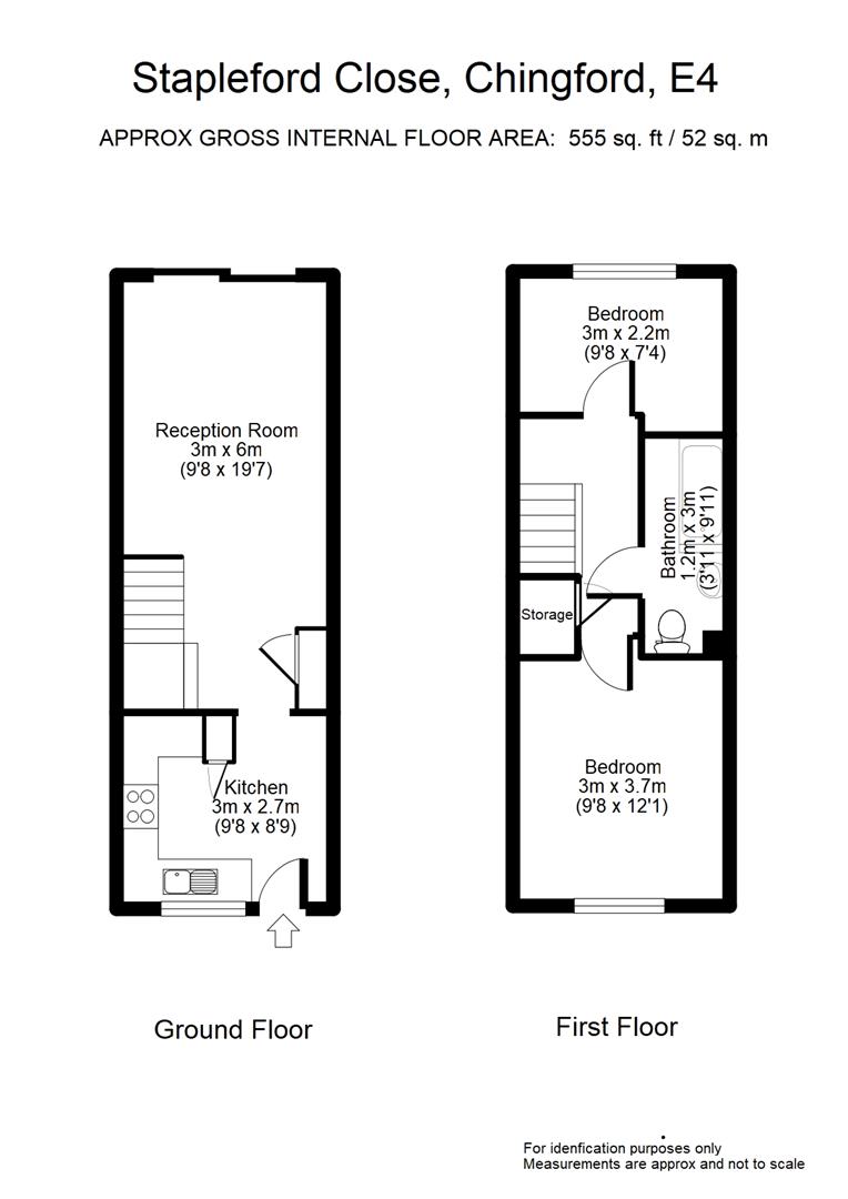
Floor Plan

7 Stapleford Close, E4 6XR.jpg

Property Images

DSC03816.jpg
DSC03781.jpg
DSC03780.jpg
DSC03784.jpg
DSC03787.jpg
DSC03791.jpg
DSC03796.jpg
DSC03803.jpg
DSC03812.jpg
DSC03815.jpg
DSC03799.jpg
DSC03801.jpg
DSC03808.jpg
DSC03804.jpg
DSC03793.jpg
DSC03794.jpg
DSC03795.jpg
DSC03797.jpg
DSC03785.jpg
DSC03790.jpg
DSC03782.jpg
DSC03810.jpg
DSC03813.jpg
DSC03818.jpg

Arrange a Viewing

Arrange a Viewing

This property is currently Under Offer. However, register your details below and we will contact you if it becomes available again.

Mortgage Calculator

Mortgage Details

Results

Stamp duty calculation

See full breakdown

Total SDLT due

Below is a breakdown of how the total amount of SDLT was calculated

Up to £0k (Percentage rate 0 %)

Above £0k and up to £0k (Percentage rate 0 %)

Above £0k and up to £0k (Percentage rate 0 %)

Above £0k and up to £0k (Percentage rate 0 %)

Above £0k and up to £0m (Percentage rate 0 %)

Above £om (Percentage rate 0 %)

Please note: This is for illustrative purposes only. The above calculator should not be relied upon when making financial decisions. Please seek advice from a specialist financial provider.

IMPORTANT NOTICE

Descriptions of the property are subjective and are used in good faith as an opinion and NOT as a statement of fact. Please make further specific enquires to ensure that our descriptions are likely to match any expectations you may have of the property. We have not tested any services, systems or appliances at this property. We strongly recommend that all the information we provide be verified by you on inspection, and by your Surveyor and Conveyancer.

Find your next property